www.guadanews.es
Fuentenovilla comienza la construcción de su nuevo centro social
Ampliar

Fuentenovilla comienza la construcción de su nuevo centro social

El Ayuntamiento fuentenovillero ha iniciado la edificación del que será su nueva infraestructura municipal, que estará al servicio de la ciudadanía. Constará de dos plantas, se levantará sobre un solar de 231 metros cuadrados y se domiciliará en la calle del Ángel, en pleno casco urbano de la localidad

Por REDACCION
x
redaccionguadanewses/9/9/19
lunes 06 de marzo de 2023, 12:16h

google+

linkedin

Comentar

Imprimir

Enviar

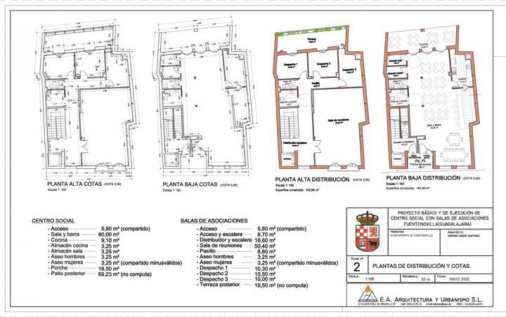
Fuentenovilla va a ampliar los servicios que ofrece a sus vecinos. Y lo hará a través de un centro social, del que ya han comenzado las obras de construcción. Será un complejo que constará de dos plantas y que se edificará sobre un solar de 231 metros cuadrados. Las dependencias se ubicarán en la calle del Ángel, en pleno casco urbano, a escasos metros de la plaza Mayor.

La infraestructura se dividirá en dos partes diferenciadas. La primera, que estará en la planta baja, será el «centro social» como tal, en el que se distinguirá una sala de estar de 80 metros cuadrados. Asimismo, se han previsto una cocina, dos almacenes, sendos aseos –uno para mujeres y otro para hombres–, un porche y un patio posterior, que contará con 69.23 metros cuadrados.

El segundo piso, en cambio, fungirá como «sala de asociaciones». Y, en el mismo, se distinguirán tres despachos –de algo más de 10 metros cuadrados cada uno–; una sala de reuniones de 50 metros cuadrados; así como los respectivos corredores, distribuidores, pasillos y baños habituales en este tipo de espacios. De igual forma, contará con una terraza posterior, que tendrá 18,20 metros cuadrados.

“El Ayuntamiento compró el terreno a unos particulares. Se trataba de una vivienda vieja que tiramos. Tras ello, se ha hecho un proyecto para la ejecución de un centro social, que ya se ha comenzado a construir”, confirma la alcaldesa, Montserrat Rivas. El presupuesto total de las actuaciones asciende a 428.652,17 euros.

Como es un precio elevado, se va a afrontar a en diferentes etapas. La primera, que ya se ha iniciado, es asumida por Planes Provinciales de la Diputación, y su valor asciende a 84.000 euros. Además, el Consistorio fuentenovillero cuenta con una subvención de 100.000 euros procedentes –también– de la institución provincial, mientras que el resto del montante –244.652,17 euros– correrá a cargo de fondos municipales.

Las actuaciones de la primera fase, basadas en la preparación del terreno, se encuentran adjudicadas e iniciadas por parte de la Diputación. Desde ese momento, el plazo de máximo de ejecución es de seis meses. Una vez concluida esta etapa inicial, se procederá a licitar la segunda, cuya publicación y ejecución correrá a cargo íntegramente del Ayuntamiento. “La subvención tiene que estar terminada y justificada en noviembre de este año”, explica Rivas.

El proyecto se encuentra promovido por el Consistorio de Fuentenovilla y el arquitecto de la obra es Germán Hierro Martínez. “Un complejo como este es súper necesario para la localidad”, concluye la primera edil. Por ello, el equipo de gobierno se ha puesto manos a la obra y la infraestructura podrá estar inaugurada a finales de este 2023.
¿Te ha parecido interesante esta noticia?    Si (0)    No(0)

+
0 comentarios
Portada | Hemeroteca | Índice temático | Sitemap News | Búsquedas | [ RSS - XML ] | Política de privacidad y cookies | Aviso Legal
Guadanews S.L.
C.P: 19001 - Calle Francisco Cuesta Numero 9
España / Guadalajara Contacto
Cibeles.net, Soluciones Web, Gestor de Contenidos, Especializados en medios de comunicación.EditMaker 7.8