www.guadanews.es
Arrancan las obras de ampliación de la Biblioteca Municipal León Gil de Cabanillas
Ampliar

Arrancan las obras de ampliación de la Biblioteca Municipal León Gil de Cabanillas

Por REDACCION
x
redaccionguadanewses/9/9/19
miércoles 10 de marzo de 2021, 12:41h

google+

linkedin

Comentar

Imprimir

Enviar

Este martes 9 de octubre han comenzado las obras de ampliación de la Biblioteca Municipal León Gil, que ejecuta el Ayuntamiento de Cabanillas del Campo.

Tras su salida a licitación el pasado mes de noviembre, finalmente la adjudicación recayó en la empresa «Gestión y Proyectos La Mancha SL», que presentó un presupuesto de 52.500 euros, y fue la oferta mejor valorada por la Mesa de Contratación, de entre las siete que concurrieron al concurso.

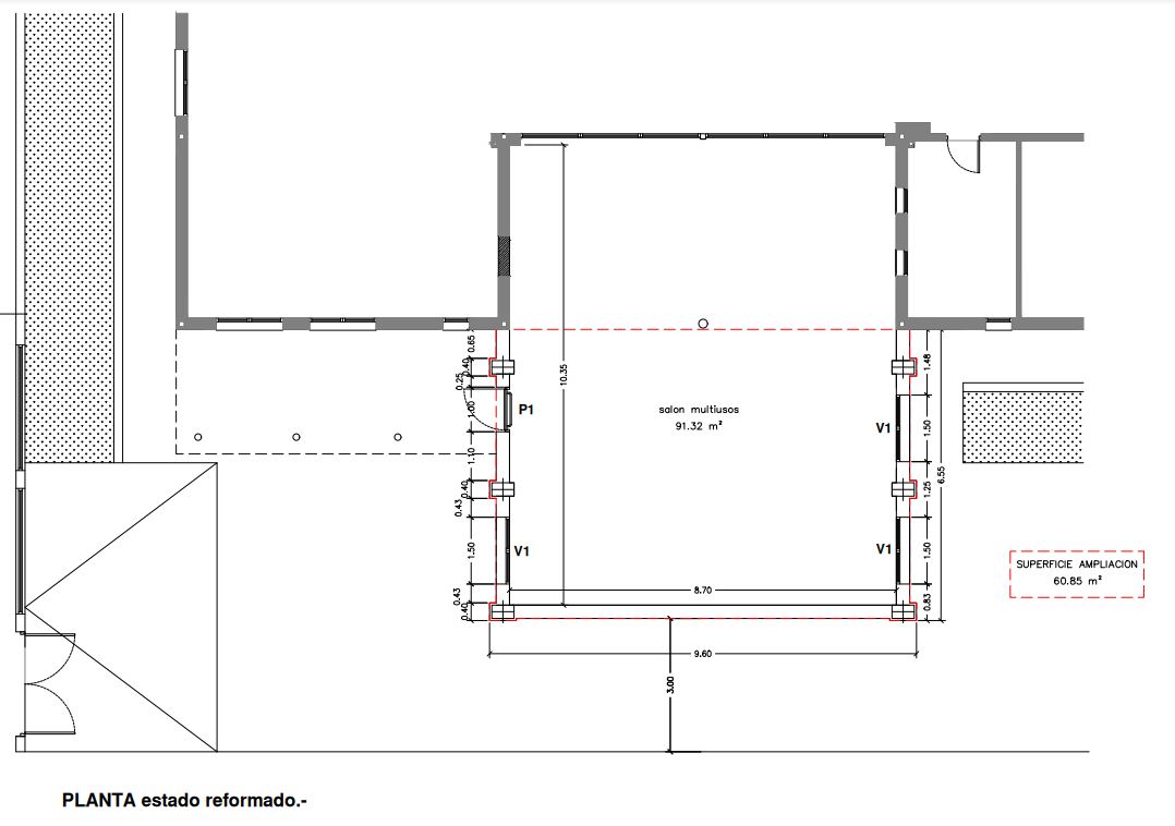
Esta obra de ampliación va a incrementar de modo notable, hasta casi triplicarla, la superficie de la Sala Multiusos de la instalación, de modo que ampliará su capacidad hasta convertirse en un salón de actos capaz de acoger la multitud de actividades que desarrolla la Biblioteca cabanillera, relacionadas con el programa de animación lectora: conferencias, presentaciones de libros, sesiones de narración oral, etcétera.

La ampliación consiste en extender, utilizando parte del actual jardín exterior, un ala del edificio de la Biblioteca, permitiendo de este modo liberar la Sala de Estudio, y que esta nunca más se vea condicionada por la actividad cultural que a veces tenía que tomar su espacio.

La nueva Sala Multiusos, con la ampliación, tendrá una superficie de más de 91 metros cuadrados, cuando en la actualidad apenas supera los 36.

Construcción del kiosco del parque
La de la ampliación de la Biblioteca no es la única obra que está desarrollando el Ayuntamiento justo en estos días. Ha que señalar que en las últimas semanas comenzaron también los trabajos de construcción del kiosco-cafetería que dará servicio al nuevo Parque Elena de la Cruz, en los nuevos desarrollos de la localidad.

La construcción de este kiosco-cafetería es uno de los últimos pasos que quedan antes de proceder en los próximos meses a la apertura pública del parque, aprovechando también la entrada en funcionamiento del nuevo servicio de mantenimiento de jardines, que ya incluye esta nueva zona verde.

Las obras del kiosco las está ejecutando la mercantil «Manile SA», con un presupuesto de casi 160.000 euros. La instalación se está levantando junto a la puerta principal del parque, y albergará en su interior unos asesos, cafetería, porche exterior para una terraza de hostelería, y una nave de trabajo donde se guardarán herramientas y utensilios propios de las labores de mantenimiento del parque.
¿Te ha parecido interesante esta noticia?    Si (1)    No(0)

+
0 comentarios
Portada | Hemeroteca | Índice temático | Sitemap News | Búsquedas | [ RSS - XML ] | Política de privacidad y cookies | Aviso Legal
Guadanews S.L.
C.P: 19001 - Calle Francisco Cuesta Numero 9
España / Guadalajara Contacto
Cibeles.net, Soluciones Web, Gestor de Contenidos, Especializados en medios de comunicación.EditMaker 7.8